Hopp til hovedinnhold

Telefonkioskens form

I 1932 ble arkitekt Georg Fredrik Fasting kåret som vinner i arkitektkonkurransen utlyst av Telegrafverket om design av offentlig telefonkiosk i Norge. Helt fra den første telefonkiosk ble produsert i 1933 har det blitt gjort endringer og modifseringer i kioskens utseende og produksjon.

I tidens løp har gamle og nye løsninger vært brukt om hverandre. Dette gjør at det har vært en glidende overgang mellom stadier. Likevel fremkommer tre epoker i utseendet og produksjon som skiller seg tydeligere ut.

  • 1. Arkitekt Georg Fredrik Fastings første telefonkiosk, 1932–1933
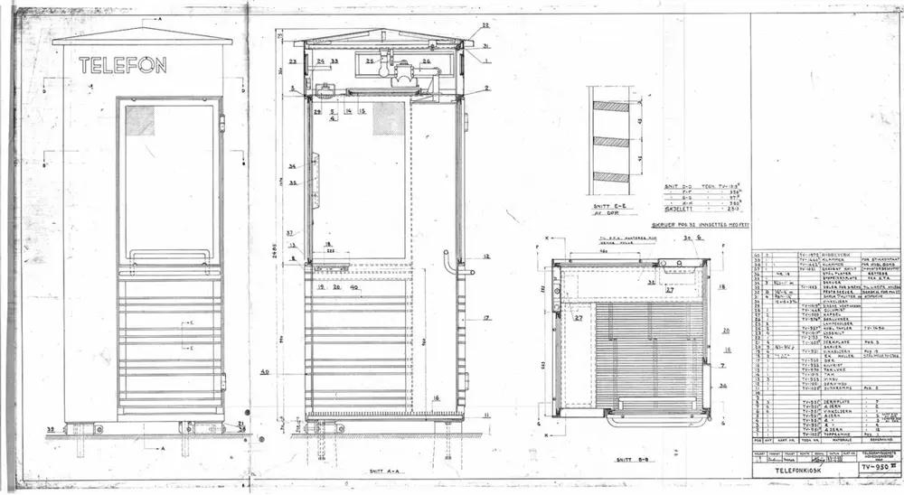
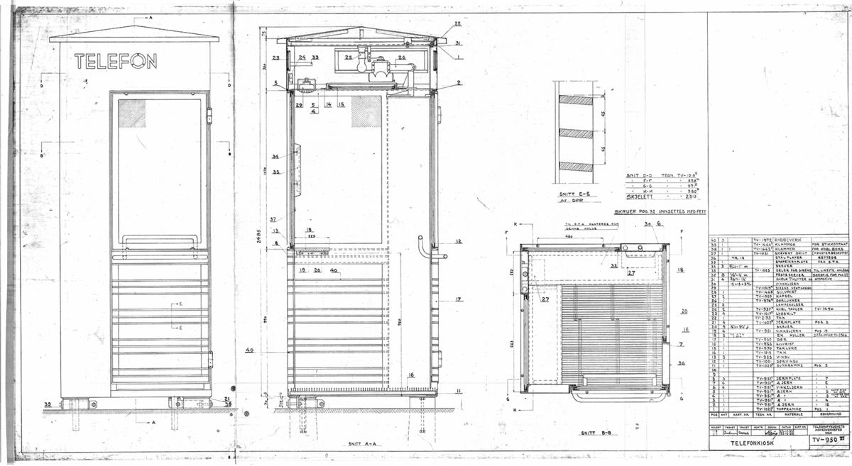
  • ​2. Telegrafverkets hovedverksted tegninger, 1933–1938
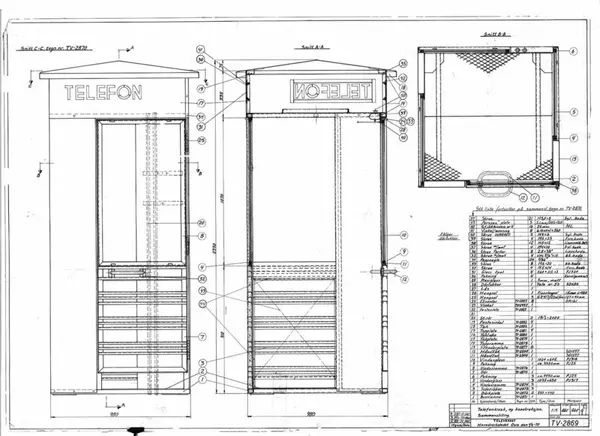
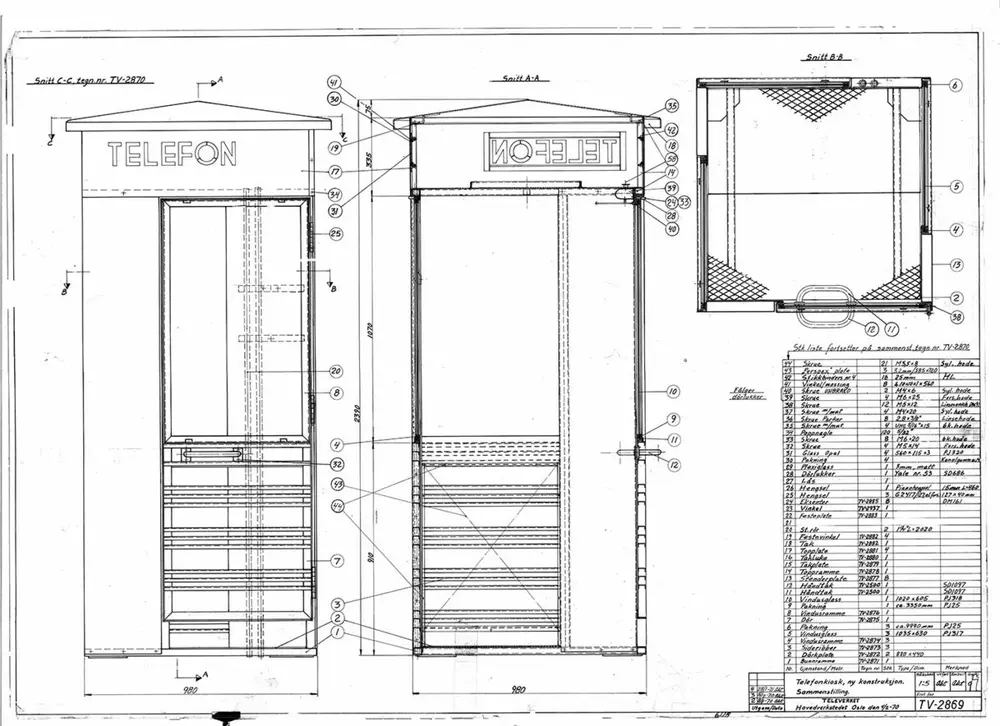
  • ​3. Telegrafverkets hovedverksted tegninger, 1970–1973

    Arkitekt Georg Fredrik Fastings første telefonkiosk, 1932–1933

    Dette er Fastings første utgave etter konkurransen, antagelig laget i samarbeid med Hovedverkstedet.

    • 1/2
      Telefonkiosk ved Amerikalinjen.
    • 2/2
      Arkitekt Georg Fredrik Fastings tegning for telefonkiosken, juni 1933

    Arkitektens tegninger er datert juni 1933. De mest synlige forskjeller i forhold til senere varianter er:

    • Plater utvendig og innvendig er ikke knekt rundt skjelett, men naglet fast. Dette gir synlige naglefester.
    • TELEFON er stanset ut i egen plate som er festet til veggplate.
    • Det er sveiset inn en midtsprosse i rillefelt
    • Hylle innvendig er på to sider
    • Vindu har synlige innfestinger i ramme.
    • Taket er i kobber med oppbrett i skjøter, samt at det er feste i senter av taket for mottak av telefonlinje.

    Av arkivet kan vi se at det skal være 5 tegninger, men den eneste original som er inne er "BLAD 5". De andre 4 er det kun dårlige kopier av.

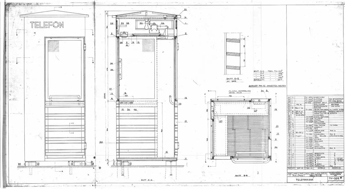
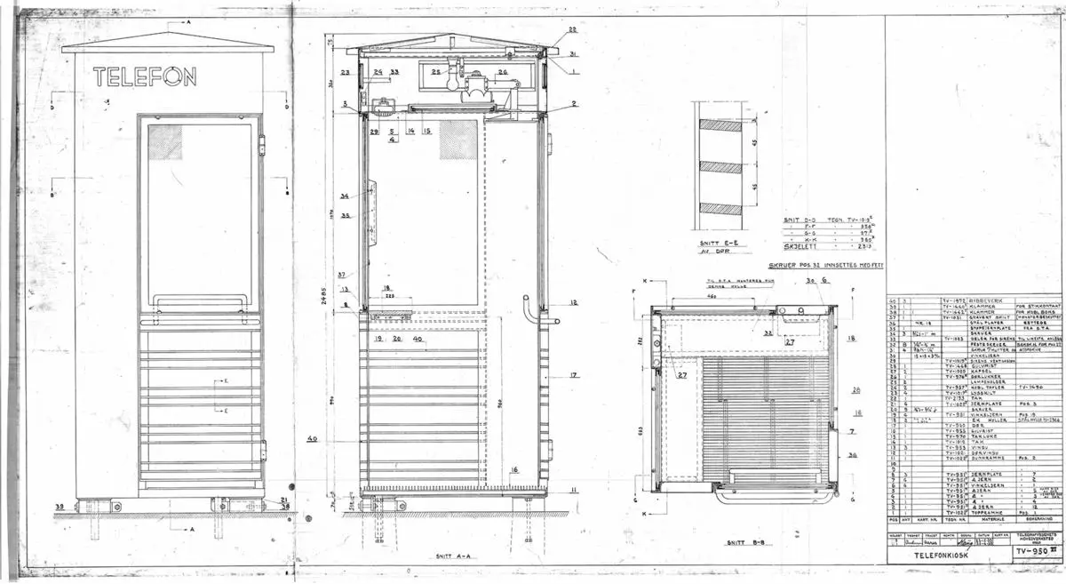
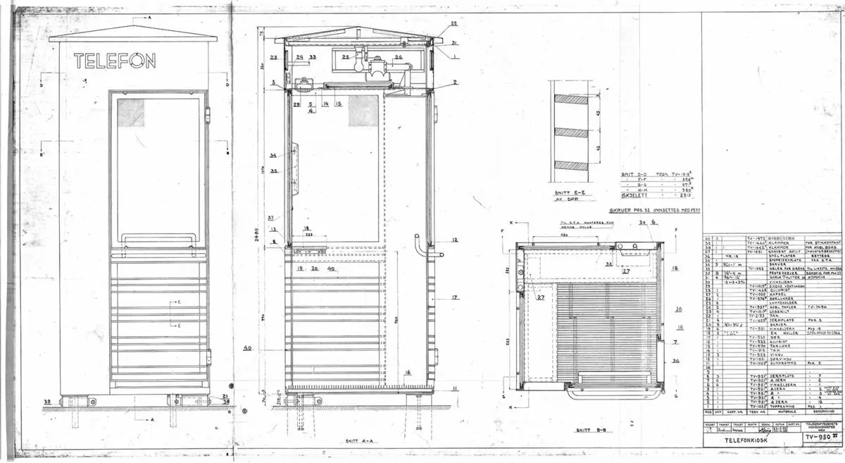
    Telegrafverkets hovedverksted tegninger, 1933–1938

    Mange av tegningene er datert på høsten 1933. Her er de mest synlige endringer:

    • Plater utvendig knekkes rundt skjelettet, slik at det blir ingen synlige naglefester. TELEFON er stanset ut i veggplate, slik at det ikke blir et eget felt for skiltet.
    • Taket blir nå i jern og sveiset sammen i skjøter.
    • Midtsprosse i rillefeltet blir fjernet.

    Kioskens vekt og høyde er tilnærmet lik som første utgave, høyde 2500 mm og vekt, ca 850 kg 

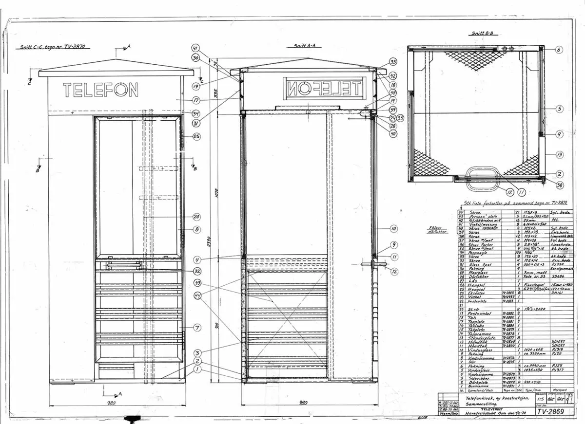
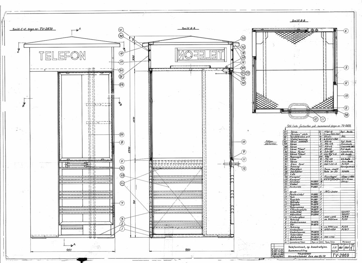
    Telegrafverkets hovedverksted tegninger, 1959–1973

    Hovedverkstedet gjør forenklinger på 1960-1970 tallet. Her er de mest synlige endringer: 

    • Kiosken blir 110 mm lavere
    • Ribbene i rillefeltene var tidligere massivt jern (ca. 10x40mm) Dette blir nå U-pro ler
    • Veggplater utvendig deles opp, slik at det blir ett toppfelt med «TELEFON» og ett veggfelt.
    • Gulvrist forenkles

    I denne prosessen blir dimensjoner i materialer brukt i kiosken redusert. Dette sammen med at høyden nå er 2390 mm gir en vekt på ca 400 kg.

    Museum24:Portal - 2025.09.08
    Grunnstilsett-versjon: 1